Characters     Combat     Skill Check     Skill List     Spells     Spell List     Equipment     Sanity     Recovery     NPCs     YK


    Wicomico Hotel Post Card
    Post Card Back

    Letter with Packages
    package1
    package2

    Truck Stop
    Cecil Green
    Wicomico Hotel AD

    Streets Main Division
    Streets Frederick Fonthill
    Viking Oldsmobile

    Obsidian Club
    Wicomico Hunt Club
    Laura Victoria Wailes

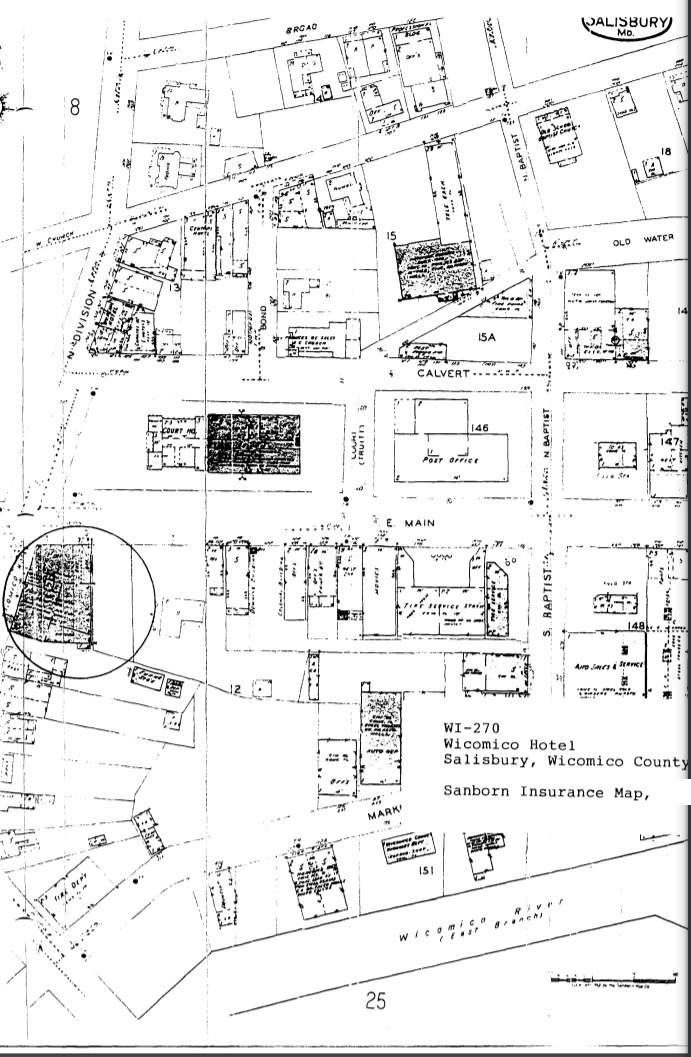
    City Map 1
    City Map 2
    Hotel Report

    Wicomico Hotel 1
    Wicomico Hotel 2
    Windows
    Hotel Inside
    Hotel Floorplan
    Fat Man Nightclub
    FMC

    Bottle & Blade
    Disharoon Cabin
    Hanna Cabin
    Enti

    fm n club  yk3
    C Leader
    Transformation
    C Transformed
    N club